Women and Family Complex Facility
Team: Irgen Salianji, Marina Kounavi, Karolina Szóstkiewicz, Antony Laurijsen, Stavria Psomiadi
Team: Irgen Salianji, Marina Kounavi, Karolina Szóstkiewicz, Antony Laurijsen, Stavria Psomiadi
Cityscape
The site is
located at Daebang-dong, where U.S. army base ‘Camp Grey’ had been located for
55 years until the retrocession in 2007. Located adjacent to this site was
Seoul Women Shelter which accommodated prostitutes, runaway dementia elders,
and vagrants from 1962 to 1998. The shelter was converted to Seoul Women Plaza.
This is a symbolic place where tragic division of the Korean peninsula, poverty
and hardships of woman in the era is accumulated and conveys the agony of
Korean modern history. The purpose of this project to turn this gloomy and
‘deathlike’ space into a place of resurrection, a site of nurturing space that
will foster welfare of women and families.
Therefore, the
project develops a strong direct urban intervention by connecting the train
station of the area with the Women Plaza through the new building of the
facility. This programmatic carpet of connection breaks the rectangular volume
of the project and creates a large urban void that can host events and
activities. A large 5-floors-high urban door opens to enhance the continuity
and welcome the fusion between public and private, inside and outside, as well
as transition from the urban to the domestic. As a result, rather that breaking
the program into several smaller volumes, the proposal condenses all of it into
a single orthogonal envelope, suggesting efficiency and unity as the future of
sustainability both in environmental and social terms.
Concept
As proclaimed from
the title of the project, the building is designed as an organic urban womb
that intensifies spatially and programmatically the urbanity of the site and
the wider area. The building consists of a compact rectangular volume that
is interrupted by a sequence of voids to create a dynamic network of activities
inside the building. The main void of the project is defined by the big pixelated
plinth and resembles an over-scaled urban living room or lecture theatre for
the community of Women and Families of Seoul to exist together in a common
three-dimensional network and perform their daily activities within an open
platform.
The new Women and
Family Complex Facility will be a space where relationship among family and
households of women will be enhanced. The organization will face age-old
unresolved issues with new experimental thinking and interesting methods. The
issues tackled will include collapse of social relation network, lack of communication
among family members, 1 person household, women’s low participation on economic
activities which stagnated for 20 years and stagnant of gender inference.
“We shape our
buildings and thereafter they shape us,” as the statement indicates, it is very
crucial that the new spatial composition of Seoul Urban Womb inspires citizen’s
participation and enforces accumulation of relational network, added to
programs and operation system. Imagine a space where you are encouraged to meet
each other, helps to form creative culture and learn customs of community, and
expands value of gender equality in family and community.
Organization
The building is
composed of a hybrid mix-use program that contains Family space, Handwork
activities, Growing space, Conference spaces, a Learning center and Communal
Spaces. In order to create clarity and
efficiency, the building distributes the different programmatic entities into
three basic volumes: the pixelated plinth, the vertical tower and the
horizontal slab of the roof.
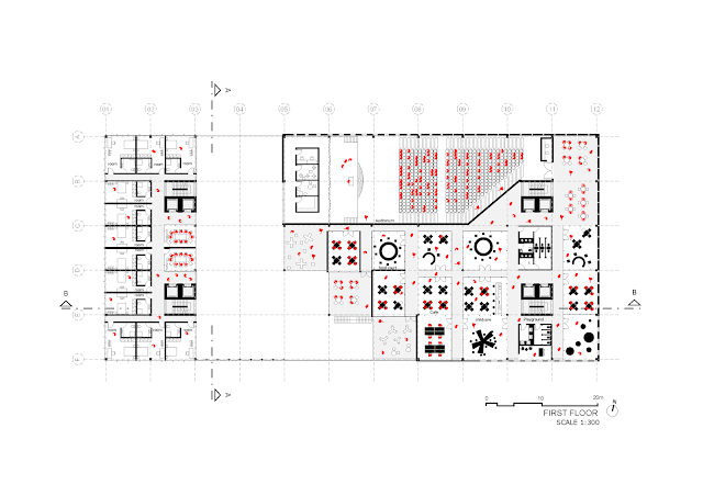
The pixelated
plinth contains the main functions of the building, such as an auditorium, the
Family space, the Youth Center, the Food courts, the Production labs and the
Shops. The organizational structure of the plinth is one of five stripes of
increasing size positioned one next to another. Each stripe contains a distinct
program and is positioned between related activities in order to maximize the
efficiency of the building and moreover to extrapolate the interaction and the
spatial experience of the users. While walking on the direction of a stripe the
user faces the same activities, but once the user walks perpendicularly he or
she receives a rich cross-programmatic experience by facing a series of
changing and dramatically different activities.
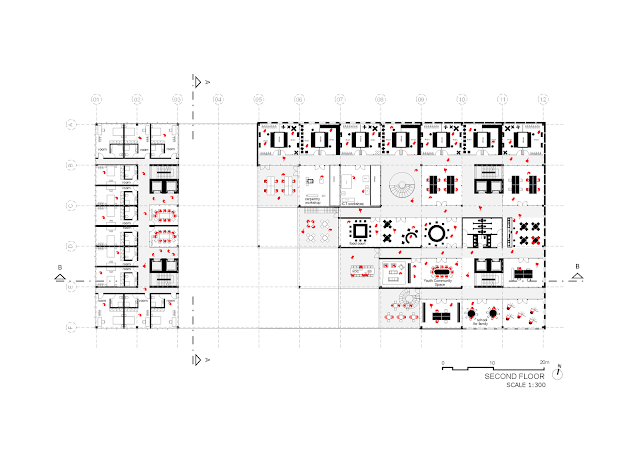
The tower of the
building houses the boarding facilities defines the western edge of the
envelope and frames the events space of the Facility. Organized as a simple and
compact machine for living, the tower contains twelve rooms and two meeting
rooms on each of its five floors above ground, whereas it houses a lobby and
the Museum of Motherhood on the ground floor, therefore animating the level of
the street. The circulation of the space is facilitated by two vertical cores
of staircases and elevators. The glass and aluminum façade of the tower is
dressed with a generic steel mesh to control sunlight and create interesting
qualities of transparency.
The rooftop slab
of the building is an inhabited truss structure that houses the conference
facilities and administration. The whole floor is designed as a clear array of
programmatic zones tied together by a perimetric circulation zone. Along the
façade the floor is programmed with informal and open-plan office areas. In the
center of the floor and illuminated by two large courtyards there are the
conference rooms of various sizes, as well as meeting rooms and the vertical
circulation cores.



































This comment has been removed by a blog administrator.
ReplyDeleteThis comment has been removed by a blog administrator.
ReplyDelete